Ruime en Kwalitatief Gebouwde Vrijstaande Woning in Lukovica pri Brezovici

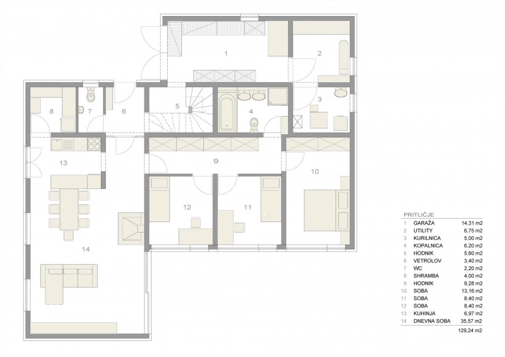
Op een rustige en toegankelijke locatie in het dorp Lukovica pri Brezovici staat deze ruime en kwalitatief gebouwde vrijstaande woning te koop. Ideaal voor een gezin dat comfortabel wil wonen in de nabijheid van de natuur en alle benodigde infrastructuur zoals scholen, kinderdagverblijven, openbaar vervoer en recreatiegebieden. De woning biedt ook snelle toegang tot Ljubljana via de nieuwe snelwegverbinding Dragomer, op slechts 1 km afstand. De woning beschikt over een begane grond met een grote woonkamer die de eetkamer en keuken met aparte opslagruimte combineert, drie slaapkamers, een badkamer, een garage, een strijkkamer en een stookruimte. De zolder heeft een grote gemeenschappelijke ruimte, drie grote slaapkamers en een onafgewerkte badkamer. Buiten is er een atrium met een overdekt terras, een extra terras met uitzicht op de tuin, en parkeergelegenheid voor meerdere auto’s. De woning is direct verbonden met de buitenruimte, met toegang tot het atrium vanuit de woonkamer en tot het terras en de tuin vanuit de keuken. De woning is voorzien van centrale verwarming op stookolie, met radiatoren op de begane grond en vloerverwarming op de zolder. Er is ook een houtkachel in de woonkamer voor extra warmte in de koudere maanden. In 2016 is het dak gerenoveerd met nieuwe dakbedekking, thermische isolatie en dakramen. De zolder is toen ook ingericht met drie ruime kamers en voorbereidingen voor een badkamer. De woning is aangesloten op het riool en heeft een glasvezelaansluiting. Lukovica pri Brezovici biedt een rustige woonomgeving met gemakkelijke toegang tot de stad en de natuur, ideaal voor gezinnen die op zoek zijn naar een comfortabele en goed verbonden woning.
Locatie
Deel dit object
Tags
Pages
Bedrijfsgegevens
T: +31 (0)6-41416144
E: info@slovenievastgoed.nl



