Ruime Twee-onder-één-kap Huis met Adembenemend Uitzicht in Gozd Martuljek

Deze prachtige twee-onder-1-kap woning, gelegen in het schilderachtige Gozd Martuljek, biedt een unieke kans voor investeerders en gezinnen die op zoek zijn naar een woning in de Alpen.
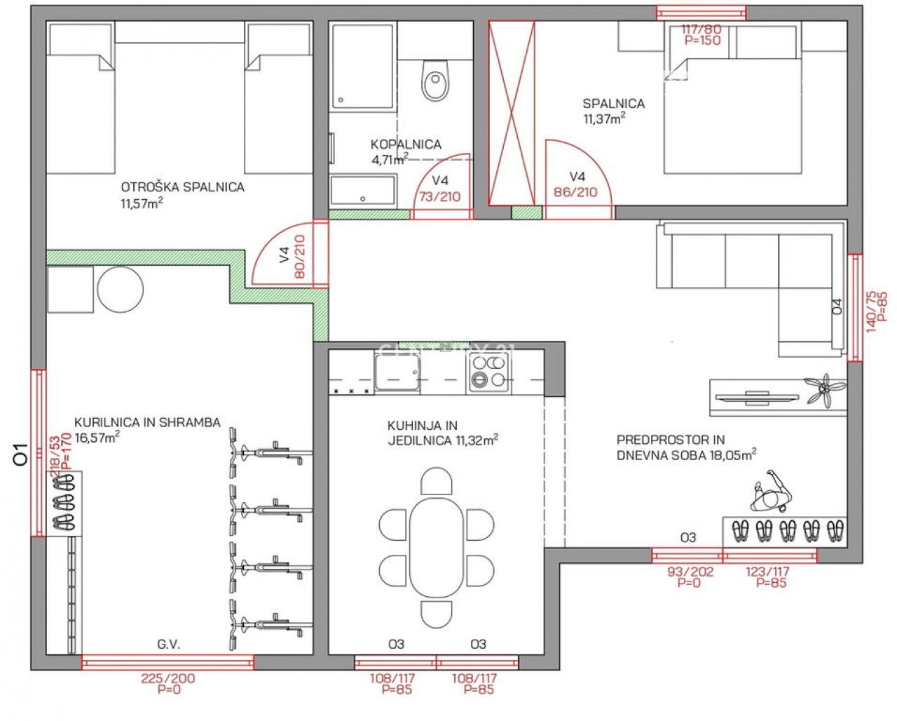
Met een royale oppervlakte van 173,9 m² en een bijbehorend perceel van 292,5 m², biedt deze woning tal van mogelijkheden voor herinrichting. De woning beschikt over een gedeeltelijk onderkelderd begane grond en een eerste verdieping. De eerste verdieping omvat een grote multifunctionele ruimte met toegang tot de binnenplaats, een extra kamer die kan dienen als slaapkamer of kantoor, een stookruimte en een garage met een elektrische deur. De tweede verdieping biedt een keuken, een lichte woonkamer met panoramisch uitzicht op de bergen, een slaapkamer, een kleedkamer, een badkamer, een apart toilet en een gang. Vanuit de keuken en woonkamer is er toegang tot een groot balkon op het oosten en zuidoosten, dat een prachtig uitzicht biedt op het berglandschap.
De woning is ideaal gelegen voor toeristische verhuur, investeringen, gezinsbewoning of als vakantiehuis in het hart van de Alpen.
In de nabijheid bevindt zich Kranjska Gora (5 km), dat skigebieden, rodelbanen en een breed scala aan sportactiviteiten biedt. Ook het meer Jasna, de Vršič-pas en het meer van Bled zijn slechts enkele minuten rijden verwijderd. De bushalte ligt op slechts 350 meter afstand, wat comfortabel wonen zonder auto mogelijk maakt. Alle belangrijke infrastructuur (winkels, school, kleuterschool, gezondheidscentrum) is beschikbaar in Kranjska Gora.
De woning is kadastraal geregistreerd, vrij van lasten en klaar voor onmiddellijke overname.
Locatie
Deel dit object
Tags
Pages
Bedrijfsgegevens
T: +31 (0)6-41416144
E: info@slovenievastgoed.nl



