Sanctuarium van Rust en Licht in Cerklje na Gorenjskem

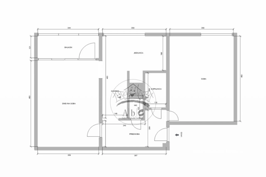
Ontdek een droomappartement in Cerklje na Gorenjskem, waar rust en licht samenkomen in een prachtig gerenoveerd 2,5-kamer appartement. Dit appartement, gebouwd in 1959, biedt een perfecte balans tussen stad en natuur. Geniet van de nabijheid van winkels, scholen en diensten, terwijl u omringd bent door groen, wandel- en fietspaden. De grote ramen zorgen voor een overvloed aan natuurlijk licht, en de open, luchtige ruimtes bieden een gevoel van vrijheid. Het appartement is volledig gerenoveerd en klaar om in te trekken, met een modern design dat warmte en gezelligheid uitstraalt. De indeling omvat een uitnodigende hal, een keuken met eetkamer die uitkomt in een ruime woonkamer, twee lichte en rustige kamers, en een badkamer met toilet. Extra opslagruimte is beschikbaar in twee kelders, en parkeren is eenvoudig voor het gebouw. Cerklje na Gorenjskem biedt een uitstekende locatie met privacy, rust en een hoge levenskwaliteit. Geniet van de nabijheid van de natuur en de stad, en maak van dit appartement uw nieuwe thuis.
Locatie
Deel dit object
Tags
Pages
Bedrijfsgegevens
T: +31 (0)6-41416144
E: info@slovenievastgoed.nl



