Sfeervol rijtjeshuis in Opatje Selo met moderne architectuur

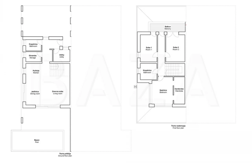
Ontdek deze prachtige nieuwbouw rijtjeshuis in Opatje Selo, gelegen in de schilderachtige regio van de Sloveense Karst, vlakbij de Italiaanse grens. Deze moderne woning biedt een perfecte balans tussen hedendaagse architectuur en energie-efficiëntie, omgeven door de serene schoonheid van de Karst. De woning, met een totale oppervlakte van 189,09 m², beschikt over een doordachte indeling met een ruime woonkamer, een open keuken en eetkamer, en een zonnige zuidgerichte terras. Boven bevinden zich drie slaapkamers, waaronder een hoofdslaapkamer met inloopkast en een balkon. De woning is gebouwd volgens hoge standaarden met hoogwaardige materialen, zoals drievoudige PVC-ramen en een lucht-water warmtepomp. De locatie biedt gemakkelijke toegang tot de kust, Italië en grotere stedelijke centra, terwijl het een ideale uitvalsbasis is voor liefhebbers van wandelen, fietsen en natuur. Geniet van de nabijheid van lokale wijngaarden, stenen huizen en de rustige landelijke levensstijl. Dit huis is een uitstekende investering voor wie op zoek is naar een modern, energiezuinig huis in een veilige en goed onderhouden omgeving.
Locatie
Deel dit object
Tags
Pages
Bedrijfsgegevens
T: +31 (0)6-41416144
E: info@slovenievastgoed.nl



