Uitstekend bouwperceel in het hart van Kranj

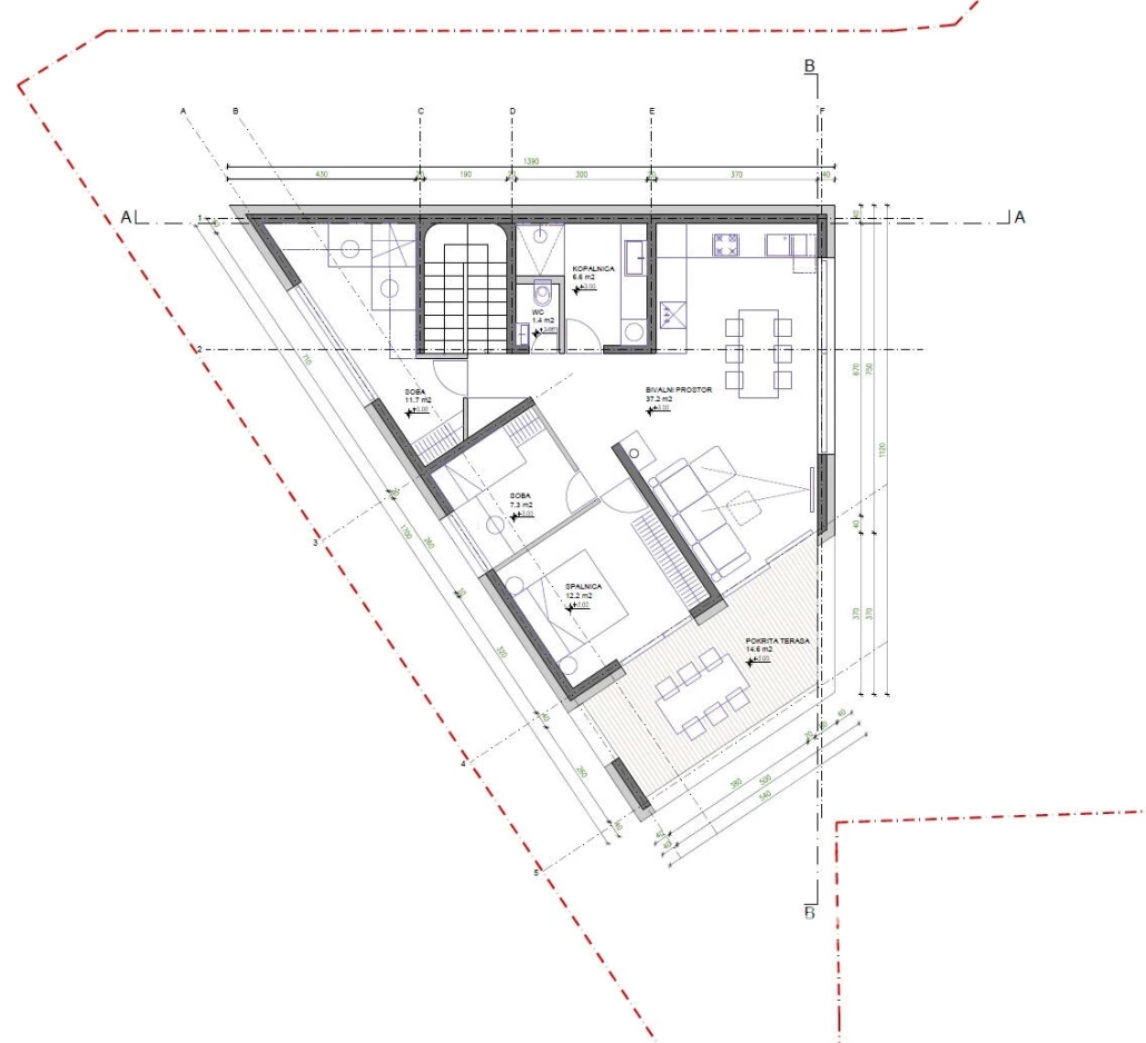
Dit bouwperceel van 515 m² is gelegen in de prestigieuze wijk Vilka Četrt, op slechts enkele minuten lopen van het centrum van Kranj. Het perceel bestaat uit vier kavels en is ideaal voor de bouw van een eengezins- of tweegezinswoning. Er is al een project ingediend voor een bouwvergunning voor een tweeverdiepingsgebouw met een totale bruto vloeroppervlakte van 228,4 m². De locatie biedt gemakkelijke toegang tot alle noodzakelijke voorzieningen zoals scholen, kinderdagverblijven, supermarkten en sportparken. Kranj, gelegen in de regio Gorenjska, is een charmante stad met een rijke geschiedenis en biedt tal van toeristische attracties zoals het Prešeren Gaj en het Park Janeza Bleiweisa. De nabijheid van de rechtbank maakt het perceel ook geschikt voor een residentieel-commercieel gebouw, ideaal voor advocaten of notarissen. De regio biedt uitstekende vervoersmogelijkheden en een levendige gemeenschap.
Locatie
Deel dit perceel
Tags
Pages
Bedrijfsgegevens
T: +31 (0)6-41416144
E: info@slovenievastgoed.nl



