Uitstekende kans in Črna Vas: Ruim 5-kamer duplex appartement

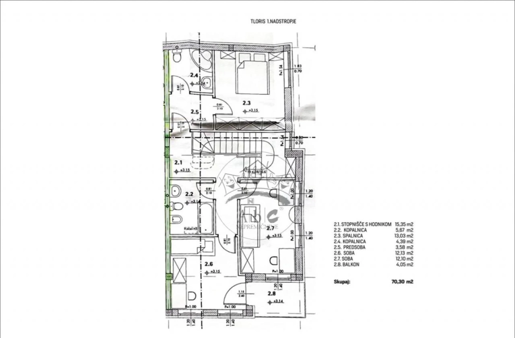
Ontdek een unieke kans in Črna Vas met dit ruime 5-kamer duplex appartement in een gezinswoning, gebouwd in 1996. Het appartement biedt 148 m² aan woonruimte, waarvan 74 m² volledig is afgewerkt en direct bewoonbaar is. Het andere deel van 74 m² is nog niet afgewerkt, wat een perfecte gelegenheid biedt om het naar eigen wens in te richten. Dit appartement is ideaal voor gezinnen die behoefte hebben aan meer ruimte en de mogelijkheid willen hebben om hun woning aan te passen aan de groei van hun kinderen. De woning beschikt over een balkon, centrale verwarming met radiatoren en is volledig gemeubileerd. De energieklasse is E. Gelegen in een rustige omgeving met parkeergelegenheid voor de deur, biedt deze woning een oase van rust en privacy. Črna Vas ligt in de regio Ljubljana, een gebied dat bekend staat om zijn rijke culturele erfgoed en uitstekende voorzieningen. In de buurt vindt u diverse winkels, restaurants en goede vervoersverbindingen naar het centrum van Ljubljana. Dit is een perfecte investering voor diegenen die een huis willen creëren dat volledig aan hun wensen voldoet.
Locatie
Deel dit object
Tags
Pages
Bedrijfsgegevens
T: +31 (0)6-41416144
E: info@slovenievastgoed.nl



