Modern en ruim 4-kamer appartement in het hart van Apače

€287.919
📍 Locatie: Apače, Gornja Radgona
🗺️ Regio: Pomurska
🛏️ Slaapkamers: 4
🚿 Badkamer: 1
📏 Woonoppervlakte: 136 m²
🏗️ Bouwjaar: 2025

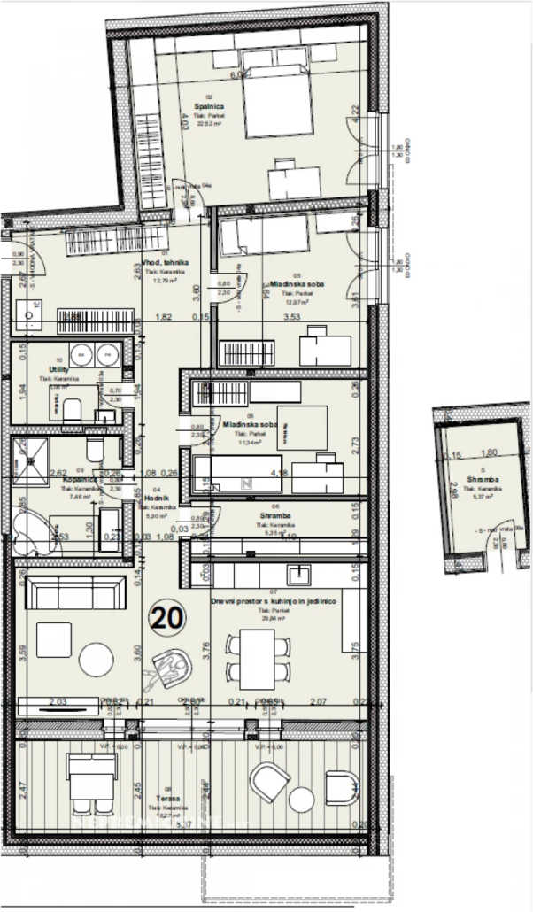
Ontdek de unieke kans om een modern 4-kamer appartement te bezitten in het centrum van Apače, gepland voor voltooiing in 2025. Dit appartement biedt een comfortabele woonruimte van 107,90 m², gelegen op de tweede verdieping van een nieuwbouwcomplex met een lift. Het complex is strategisch gelegen tegenover een school en nabij winkels, wat zorgt voor een praktische en comfortabele leefomgeving. Het appartement beschikt over een terras van 18,22 m², twee bergingen en een parkeerplaats, wat extra gemak en opslagmogelijkheden biedt. De hoogwaardige afwerking omvat eikenhouten vloeren, keramische tegels in de badkamers, en moderne sanitaire voorzieningen. De energiezuinige voorzieningen zoals vloerverwarming en een warmtepomp maken dit appartement niet alleen comfortabel, maar ook duurzaam. De regio Pomurska staat bekend om zijn prachtige natuur en rustige omgeving, ideaal voor een ontspannen levensstijl. Nabijgelegen voorzieningen omvatten winkels, restaurants en uitstekende vervoersverbindingen.

€287.919

Locatie

Kaart wordt geladen...