Moderne 3-slaapkamer appartement in het hart van Apače

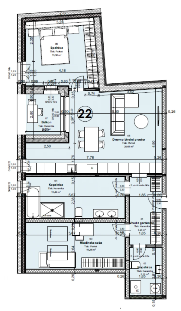
Ontdek een unieke kans om een modern 3-slaapkamer appartement te bezitten in het centrum van Apače. Dit nieuwbouwproject, gepland voor voltooiing in 2025, biedt een eigentijdse en functionele woonervaring. Gelegen op de tweede verdieping van een residentieel gebouw met lift, biedt het appartement een woonoppervlakte van 91,73 m². Het beschikt over een ruime woonkamer, een slaapkamer, een jeugdkamer, een badkamer en een balkon van 4,62 m². Extra opslagruimte van 5,51 m² en een parkeerplaats zorgen voor extra comfort. De locatie biedt snelle toegang tot essentiële diensten en infrastructuur, terwijl de nabijheid van de natuur een rustige leefomgeving garandeert. Apače, gelegen in de regio Pomurska, staat bekend om zijn schilderachtige landschappen en biedt tal van recreatieve mogelijkheden. Nabijgelegen voorzieningen omvatten winkels, scholen en gezondheidsdiensten. Het gebied is goed verbonden met het openbaar vervoer, waardoor het een ideale keuze is voor gezinnen en investeerders.



